Фасадная система РОНСОН-200 под Металлокассеты

  • Описание системы
  • Документация к системе
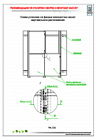
  • Фотографии + чертежи + узлы
  • Комплектующие
Компания «Алфас» предлагает решение для крепления облицовки металлокассет на системе «РОНСОН-200».

Возможна система крепления как по всей поверхности стены, так и исключительно в межэтажные перекрытия.

Облицовка зданий кассетами из алюмокомпозита получила широкое применение на многих зданиях производственного назначения, торговых центрах и даже на жилых домах, благодаря своей универсальности и технократичности.

Система НВФ «РОНСОН-200» обладает рядом преимуществ:

  • Высокая скорость монтажа
  • Надежное крепление
  • Возможность обеспечить швы шириной от 10 до 20 мм
  • Возможность расположения кассеты как в вертикальном, так и в горизонтальном направлении
  • Выполнен ряд объектов с размером кассет до 3 метров по горизонтали

f5526d837149a6c08cfa980c93fb328a
f5526d837149a6c08cfa980c93fb328a
988c183c903e39613bef53079b39ae1f
988c183c903e39613bef53079b39ae1f
cbbea82fec810c1e6434c184c8a76eb9
cbbea82fec810c1e6434c184c8a76eb9
2a8ece72fd6126f70e1fd3625291e645
2a8ece72fd6126f70e1fd3625291e645
9e2c29d6911c43e43e72b855b9b6f6cf
9e2c29d6911c43e43e72b855b9b6f6cf
7f5e7b4362072c7ec5cf37ca34e14f07
7f5e7b4362072c7ec5cf37ca34e14f07
5cb62cbd1a65bf0a3ff69f274058ba6a
5cb62cbd1a65bf0a3ff69f274058ba6a
576d79a196ff5db6753cf11b3a2bc5de
576d79a196ff5db6753cf11b3a2bc5de
02718e5382c659df7f3a46723205d128
02718e5382c659df7f3a46723205d128
8594da37e691eb34696ef6adbc8da4ec
8594da37e691eb34696ef6adbc8da4ec
3baf11bc8eac74a5ce888535ba5d59e3
3baf11bc8eac74a5ce888535ba5d59e3
d473c22495bb8986198317139f3cd16f
d473c22495bb8986198317139f3cd16f
5bdf2ce324ebe5c2cbc1695cd5929184
5bdf2ce324ebe5c2cbc1695cd5929184
58fa9b0039224de626b975ab930216e8
58fa9b0039224de626b975ab930216e8
9c5d2e4a992a575f2d0af3d90abd41b5
9c5d2e4a992a575f2d0af3d90abd41b5
689ae1df3ae5f52ff753d73bb1ce5aa9
689ae1df3ae5f52ff753d73bb1ce5aa9
fddad73c2640c7eb8acf08e3b76eb57c
fddad73c2640c7eb8acf08e3b76eb57c
8ccf954857072aab2dc856542b21deec
8ccf954857072aab2dc856542b21deec
43a1365a167452d1c9c606e2000ae788
43a1365a167452d1c9c606e2000ae788
dbfbd384f33ed5570a7609e0fa83580f
dbfbd384f33ed5570a7609e0fa83580f
1d9b974fc8bbc8ade4326a6a3adf92c9
1d9b974fc8bbc8ade4326a6a3adf92c9
97faf045797fabed9522a9d38d774c4d
97faf045797fabed9522a9d38d774c4d
61e5239aec21f2232c2c2282ba9e1ef7
61e5239aec21f2232c2c2282ba9e1ef7
55bedc38b07a0b75e7b51ea181819102
55bedc38b07a0b75e7b51ea181819102
67bc90402e5d59dcc3ac3134aba25bd3
67bc90402e5d59dcc3ac3134aba25bd3
1c08b933992ebd3217c1d6e9df9b9e41
1c08b933992ebd3217c1d6e9df9b9e41
e3cfe32c68a0be62f3bc035a99535c92
e3cfe32c68a0be62f3bc035a99535c92
d884f158edeac6be89b748411fae6cbf
d884f158edeac6be89b748411fae6cbf
ae52f922f9c4006a70fa4b19871c9a96
ae52f922f9c4006a70fa4b19871c9a96
Для вас предусмотрена скидка от базовых цен!
Отправить заявку

Другие фасадные системы под
Металлокассеты

Заказать расчёт сметы. БЕСПЛАТНО!