Фасадная система Alucom SKG под Фасадный керамогранит

  • Описание системы
  • Документация к системе
  • Фотографии + чертежи + узлы
  • Комплектующие
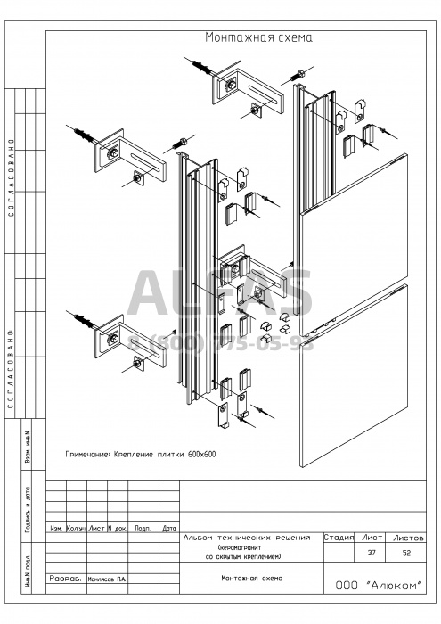
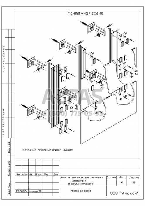
Alucom SKG – алюминиевая подоблицовочная конструкция, выполненная из сплава А6063 Т6, обеспечиваемый диапазон регулировки относа от стены от 100 мм до 320мм. В качестве облицовки используются плиты из керамического гранита в диапазоне толщин 10-12мм. Крепление осуществляется скрытым способом при помощи поворотного кляммера, изготовленного из нержавеющей стали 12Х18Н10Т. Кляммер входит в специальный паз в торце плиты керамогранита и фиксирует его.

Особенность системы:

  • Надежность крепления всей конструкции за счет применения болтового соединения кронштейна и направляющей.
  • Элементы крепления не выступают за плоскость облицовывающей плитки.
  • Быстрота сборки, обусловленная оригинальной конструкцией поворотного кляммера.
  • Концевые и поворотные кляммера устанавливаются в пазы вертикальной направляющей, что облегчает процесс монтажа и предотвращает перекос плиток.
  • Эстетическая привлекательность, характеризующаяся возможностью уменьшить швы между плитками до 4-6 мм.

5844d4fcfc8af28b566874df0dcfb525
5844d4fcfc8af28b566874df0dcfb525
aa88067a76194e5ca12ac89ba87274ed
aa88067a76194e5ca12ac89ba87274ed
cba62449ec4d1a162df6d05a58b0f882
cba62449ec4d1a162df6d05a58b0f882
80da2fcab07a0b61a1d6019bc411e223
80da2fcab07a0b61a1d6019bc411e223
3356a4842865a00a47ed0cc8500589bc
3356a4842865a00a47ed0cc8500589bc
3590dbef14ba604b8136a52679fa9790
3590dbef14ba604b8136a52679fa9790
4f4dea1dae7fa6ccd457ac5ea02f7c9c
4f4dea1dae7fa6ccd457ac5ea02f7c9c
b7666a19873d8aa28ff47d459fe5c089
b7666a19873d8aa28ff47d459fe5c089
Для вас предусмотрена скидка от базовых цен!
Отправить заявку

Другие фасадные системы под
Фасадный керамогранит

Заказать расчёт сметы. БЕСПЛАТНО!